45 septic tank baffle diagram
septic tank and a leachfield or drainfield. Primary treatment occurs in the septic tank, where bacteria digest organic materials in the wastewater. The effluent then flows into the leachfield for secondary treatment. Here, bacteria complete the digestion and purification process as the wastewater slowly leaches or infiltrates into the soil. In days gone by, septic tanks had only one compartment. Tees were placed at the inlet and outlet to force incoming waste to the bottom of the tank and to prevent the scum layer at the top, which contains greases, oils and other lighter-than-water contaminants from flowing out to the drain field and clogging the soil. Modern tanks have baffles that perform this function, but the practice of ...
Septic tank baffle diagram. Septic tank inlet and outlet tees. A sewer line leaves the house foundation sewer line and connects to the septic tank. The septic system is a sewage treatment and disposal system.

Septic tank baffle diagram
Septic Tank Diagram A minimal text infographic of a contemporary septic tank system. The image depicts a process that begins with a flushing toilet and flows to an underground system of containment and diffusion of sanitary waste. septic tank stock pictures, royalty-free photos & images. A baffle is a vital part of your septic tank, preventing solid waste from entering the field lines and also from backing up into the house drain. If the baffle has been damaged, knocked off or has rusted out, it must be replaced or repaired. A plumber can knock off a baffle by using a drain router to unclog a pipe. Septic Tank Inlet Baffle. The line entering the septic tank from your home is an "inlet" line. This line has an "inlet baffle" installed on the inside of the tank. A properly maintained inlet baffle directs incoming waste downward, below the liquid level, minimizing disruption of the liquid and solid layers inside the tank.
Septic tank baffle diagram. Most septic tank filters are located inside of the baffle of the tank. For this reason the filters are very important, since they help regulate the flow to the area of drainage. The septic tank filters are very important in situations where waste is actually being delivered from the septic tank to the drainage area. Two Compartment. 1125-1200 gallon septic tank configuration installed from late 1976 to present This tank can have 2 main 24″ lids or 2 main lids and 2 small baffle lids at both ends of tank directly above the inlet and outlet baffle, depending on manufacturer. You will be looking for 2 lids like these if there are risers to surface on the tank. How to repair a damaged or deteriorated septic tank baffle.Products used: Polylok extender - https://bit.ly/2FC6kXePolylok effluent filter - https://bit.ly/2... The inlet baffle directs the flow of wastewater into your septic tank, and prevents the scum layer in the tank from being disturbed. It also can help prevent solids from backing up toward the house if you should experience a septic system backup. In most cases a missing inlet baffle doesn't affect the overall workability of the system, but it ...
The outlet baffle should extend 24 inches into the liquid depth and 12 inches above the liquid level, which is the elevation of the invert of the outlet pipe. This is a total outlet baffle length of 36 inches. You indicated the scum layer was the thickest at the inlet end of the septic tanks you observed. Those tanks may not have the specified ... Figure 2. Diagram of a septic tank. Figure 3. Diagram of a generic advanced treatment sys-tem. Design, number of chambers, and process flow vary among the manufacturers. The drainfield ensures that the daily volume of liquid natural film of beneficial bacteria, or biomat, will form on surfaces within the drainfield and aid in treatment. About Press Copyright Contact us Creators Advertise Developers Terms Privacy Policy & Safety How YouTube works Test new features Press Copyright Contact us Creators ... A septic tank should have baffles at both the inlet and outlet. The purpose of the inlet baffle is twofold: to direct flow from the house sewer downward into the tank to create a longer detention time for the sewage to allow settling of solids, and to keep the floating scum layer from plugging the inlet pipe.
For small tanks, RCC hanging type scum baffle walls are provided in septic tanks. Baffle walls are provided near the inlet. It is optional near the outlet. The inlet baffle wall is placed at a distance of L/5 from the wall, where L is the length of the wall. The baffle wall is generally extended 150mm above to scum level and 400-700mm below it. In the basement or crawl space, locate the 4-inch sewer pipe at the point where it leaves the house. - 1, Gallon Septic Tanks: Installed up to approximately , this tank style will have one main lid and two smaller baffle lids on both ends of the tank as shown in the diagram below. Whether a septic tank baffle repair is possible depends on what type of baffle your septic tank has. The two diagrams above show the main types of baffles found in modern septic tanks. The first one is a welded ball and cone baffle, and effectively it is clamped in place around the diameter of the septic tank. It's basically a type of biodigester, only that it lacks the functionality of gas collection and waste treatment. Most septic tanks just separate the solid and liquid waste material. The wastewater will collect at the slung heap up at the bottom. As a result, the tanks will require emptying from time to time. Septic Tank Design 2-3 Chambers. It is best to construct a single compartment for ...
The septic tank baffle or tee is a device on the inlet or outlet of a septic tank which prevents sewage back-flow into the inlet or outlet pipe. The device may be made of concrete, steel, plastic, or other materials, but in all cases the septic tank tee or baffle forms a barrier between the septic tank and the inlet or outlet pipes to or from ...
Plumbing backups-- When the inlet baffle wears out, sewage might flow backwards from the tank into the house, or surface scum might prevent sewage from entering the tank.Backups can also result from clogs in the drain field caused by failure of the outlet baffle. Sewage smells-- Whether in the house or in the drain field, sewage smells indicate that unprocessed sewage may be clogging the drain ...
Step 3 - Pump the Tank. If there are any problems, you should pump the tank in order to alleviate the existing problems. It is a very important step if you plan to replace the baffle or even the entire septic tank. Step 4 - Open the Outlet Side. Once you open the lid of the outlet side, you should reach the top of the baffle and slide the ...
Septic baffles are located at the junctions where pipes enter and exit the tank. The one at the inlet pipe is called the inlet baffle, and the one at the outlet is called the outlet baffle. The outlet baffle is often considered to be the most important baffle, because it keeps solids from exiting the tank and making their way to the leach field ...
Below is a simple diagram of a multi-chamber septic tank. Illustration 5. Multi-chamber septic tank. Septic tanks need to be subjected to regular pumping to empty it of all the sludge and scum that have accumulated. If not, the potential problems this brings are numerous, disgusting, and can be fatal for your entire system.
The condition of the septic tank baffles tells you what has been happening in the septic system. Our photo , compliments of architect Jerry Waters, shows a badly deteriorated concrete septic tank baffle. Details of the septic tank baffle repair, involving installing a PVC tee in this septic tank, are shown. at SEPTIC TANK TEES.
Download scientific diagram | Schematic diagram of (a) conventional septic tank, (b) single baffle septic tank, (c) two baffles septic tank and (d) packed septic tank. from publication: Treatment ...
This article outlines three things to know about septic tank baffles. 1. Your Septic Tank Has Two Baffles. Every septic tank contains two baffles, one at the inlet and one at the outlet. The goal of both baffles involves routing waste water through the tank, while ensuring that solids remain safely segregated.
septic system performed every one to three years (depending on the type of system) and to report the condition of their system to the local health jurisdiction. The do-it-yourself (DIY) septic system inspection training program is designed to teach homeowners how to perform a basic inspection of their home septic system.
The baffle then acts almost like an upside down sieve, keeping all the solids and fats in the tank, and ensuring that only water can escape into the soakaway system. Below are a couple of lovely septic tank diagrams to show you the two most common types of septic tank baffles. The first diagram shows what's called a 'welded baffle cone'.
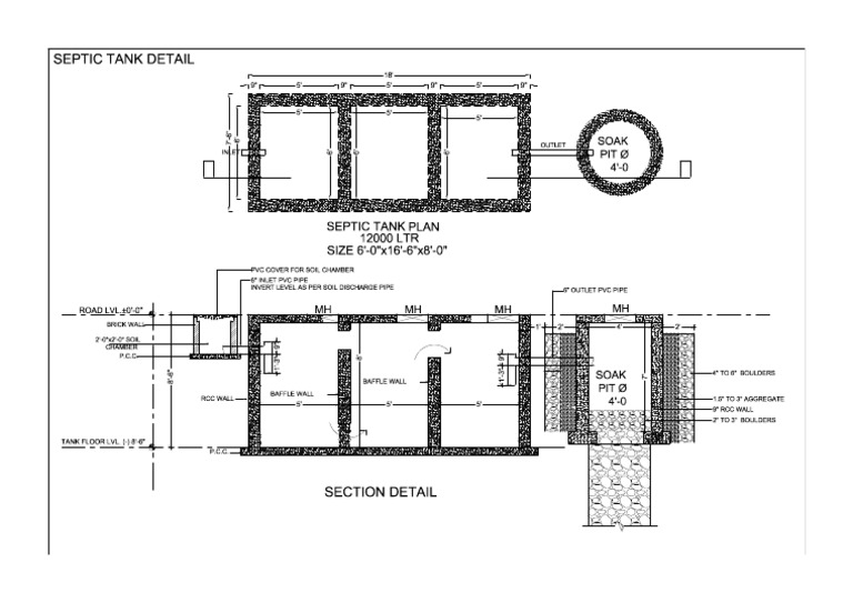
Functions of a Septic Tank 2 Different layers of sewage in the septic tank 2 Minimum Retention Time 3 Tank Configuration 4 Tank Size 5 Key components of a Septic Tank 6 Base6 Side Walls 6 Manhole6 Inlet and Outlet 6 Baffle Wall 7 Ventilation 7 Commissioning of a Septic Tank 8 Soak Pit / Seepage Pit 8 Operation and Maintenance of a Septic System 9
Septic Tank Inlet Baffle. The line entering the septic tank from your home is an "inlet" line. This line has an "inlet baffle" installed on the inside of the tank. A properly maintained inlet baffle directs incoming waste downward, below the liquid level, minimizing disruption of the liquid and solid layers inside the tank.
A baffle is a vital part of your septic tank, preventing solid waste from entering the field lines and also from backing up into the house drain. If the baffle has been damaged, knocked off or has rusted out, it must be replaced or repaired. A plumber can knock off a baffle by using a drain router to unclog a pipe.

Condition Of Septic Tank Baffles And How To Inspect Septic Tank Baffles Septic Maintenance Chapter In The Online Septic Systems Book
Septic Tank Diagram A minimal text infographic of a contemporary septic tank system. The image depicts a process that begins with a flushing toilet and flows to an underground system of containment and diffusion of sanitary waste. septic tank stock pictures, royalty-free photos & images.
Alcona Septic Service A Septic Tank Should Have Baffles At Both The Inlet And Outlet The Purpose Of The Inlet Baffle Is Twofold To Direct The Flow From The House Sewer

Submersible Pump Septic Tank Sewage Pumping Aerobic Treatment System Png 1200x630px Submersible Pump Aerobic Treatment System
0 Response to "45 septic tank baffle diagram"
Post a Comment